СТРАНИЦА НЕ НАЙДЕНА!
Свежие, новые объявления о продаже, аренде недвижимости, квартиры, комнаты, дома, машиноместа, коммерческая недвижимость в Новороссийске
8


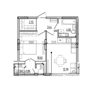
Комната в 2-к квартире, на длительный срок, 20м², 5/9 этаж
5 000 ₽ в месяц
Южный район, мкр. 10-й микрорайон, Героев Десантников 38
Все необходимые условия имеются, а именно: диван, шкаф, комоды, бытовая техника, кабельное телевидение, интернет, wi-fi. Вторая комната закрыта и сдаваться не будет. По всем вопросам звоните Оксана:
...
Агентство, 18.08.2022
3


Комната в 2-к квартире, на длительный срок, 17м², 6/10 этаж
6 000 ₽ в месяц
Южный район, мкр. 7-й микрорайон, Героев Десантников 71
Срочно! После косметического ремонта. Имеется вся мебель и бытовая техника. Установлены сейф двери и пластиковые окна. Коммунальные платежи входят в стоимость....
Агентство, 11.02.2022
Закладки
Личный кабинет








































